• 樱桃app,樱桃下载污app,www.樱桃视频app,樱桃视频最新版破解版下载

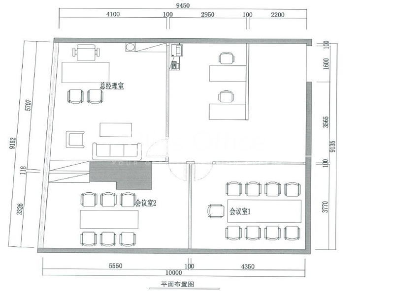
    万象城C座精装修,带部分家具,139平稀缺小面积景观房

    分享
    2.58 万元/月
    • 单价:6.1元/㎡/天
    • 物业费:33.0元/㎡/月
    139㎡
    建筑面积
    12-15人
    容纳工位
    带装修家具
    装修
    • 闵 行 -龙柏
    • 10号线-龙柏新村、10号线-紫藤路
    • 万象城

    房源专属顾问为您服务

    江帅军Evan

    13052210023
    预约看房

    公共交通

    Public transit

    万象城

    闵 行 龙柏吴中路1799号

    网站地图