• 樱桃app,樱桃下载污app,www.樱桃视频app,樱桃视频最新版破解版下载

    大宁中心广场三期江空间,精装修配家具208平,直租

    分享
    2.66 万元/月
    • 单价:4.2元/㎡/天
    • 物业费:26.0元/㎡/月
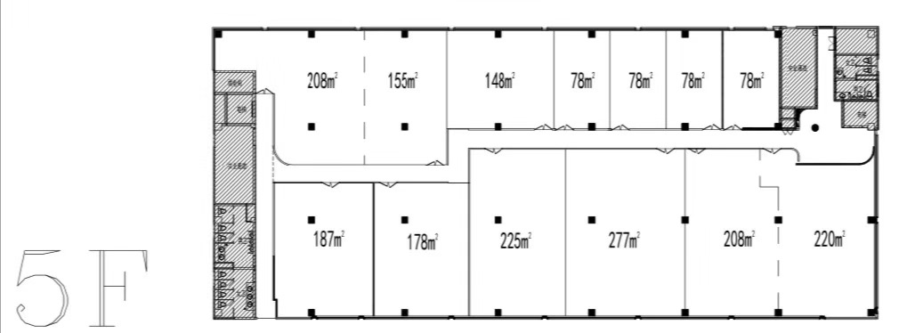
    208㎡
    建筑面积
    20-30人
    容纳工位
    带装修家具
    装修
    • 闸 北-大宁
    • 1号线-上海马戏城
    • 宁汇广场•大宁中心广场三期

    房源专属顾问为您服务

    徐佳乐Jerry

    13052210023
    预约看房

    公共交通

    Public transit

    宁汇广场•大宁中心广场三期

    闸 北大宁灵石路718号

    网站地图